Strona 1 z 2
Truma vent wyloty powietrza
: piątek, 12 lut 2021, 08:46
autor: woyek
Cześć!
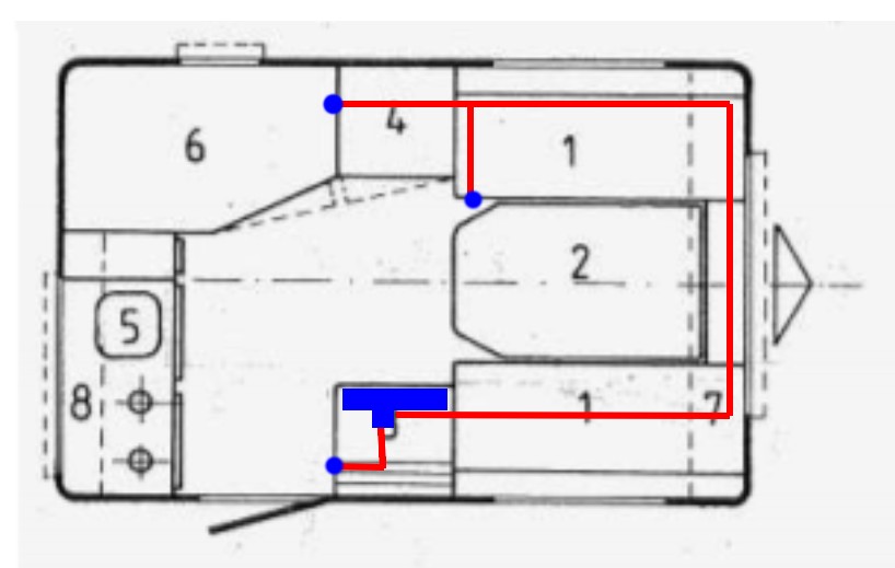
Nabyłem Trumavent i zastanawiam się nad rozmieszczeniem wylotów powietrza... Dostałem w komplecie rury i 3 sztuki wylotów, jeden trójnik, także mogę zrobić spokojnie to co narysowałem.
Gdzie jest najbardziej optymalnie mieć wyloty?
Mam układ przerobiony na N126NT jak na schemacie. Niebieskie kropki to wyloty, czerwone linie to rury. Co myślicie o takim rozłożeniu, czy lepiej coś zmodyfikować?
Zastanawiam się nad dołożeniem wylotu ewentualnie na przodzie przyczepy tylko czy jest sens, bo musiałbym dokupić trójnik i wylot.
Re: Truma vent wyloty powietrza
: piątek, 12 lut 2021, 09:23
autor: dzin1975
Jeżeli rury maja otwory na całej swojej długości, to wg. mnie ok. Jeżeli nie, to pomyślałbym o wylocie na przedniej ścianie pod łóżko. Ja tak będę robił. Fakt, mam nieocieploną przyczepę i może dlatego w chłodne dni pościel jest wilgotno-zimna. A Rudzielec nie zawsze jest skłonna do współpracy

Re: Truma vent wyloty powietrza
: piątek, 12 lut 2021, 10:52
autor: woyek
Nie są nacięte. Też myślałem żeby puścić na środku jak jest ta "linia z 2 " tylko mnie to zastanawiało czy jest sens ... Zawsze później można dać trójnik, przeciąć rurę i wylot.
Re: Truma vent wyloty powietrza
: piątek, 12 lut 2021, 11:35
autor: naal
Ja bym się nie zastanawiał tylko koniecznie zrobił wylot w łóżku. Ostatnio na wyjeździe mimo temperatury 23 stopni w budzie Przemkowi zamarzła rurka od wody. U nas w takim sezonie też materace wilgotne od spodu.
Re: Truma vent wyloty powietrza
: piątek, 12 lut 2021, 11:46
autor: kooba
1. Olej wylot przy drzwiach, na gotowanie wystarczy Ci ciepło z trumy.
2. Daj ten wylot z przodu pod łóżkiem.
3. Koniecznie zrób jak najniżej otwory wentylacyjne do bakist pod łóżkiem. Te otwory to podstawa do tego żeby materace nie były wilgotne. Nie mam fotki (może później zrobię), ale w hobby fabrycznie fronty od bakist są na zasadzie mostu żeby właśnie powietrze swobodnie docierało pod łóżko.
Re: Truma vent wyloty powietrza
: piątek, 12 lut 2021, 13:30
autor: Samoogon
Przy drzwiach chyba bez sensu choć ciągnie po rajtach od kratki, reszta chyba ok z tym, że koniecznie trzeba dogrzewać bakisty. Jak pisał Marcin, mnie dwa tygodnie temu przy -8stC w bakiście zamarzł wąż mimo, że w przyczepie było ciepło, jednak przy podłodze ciągnie złem, a ten efekt może złagodzić (nie zlikwiduje przy naszych izolacjach podłogi) właśnie went.
Co do wilgoci pod materacem nie zauważyłem, ale ja mam stelaż z listew, może lepiej to oddycha.
Kooba, z chęcią zobaczę jak masz tą wentylację rozwiązaną.
Myślę też nad montażem wentylatora zza trumy, (w sensie dołu szafy do bakisty), może da radę ogrzać choć najbliższą bakiste przy szafie. Dopiero jadąc na dobrym minusie pogoda pokazuje co i jak z tym ogrzewaniem.
Re: Truma vent wyloty powietrza
: piątek, 12 lut 2021, 15:03
autor: dzin1975
Samoogon pisze:Dopiero jadąc na dobrym minusie pogoda pokazuje co i jak z tym ogrzewaniem.
No bo kto w zimie z przyczepą jeździ
Truma to tylko plus 10 na dzielni, a nie żeby używać

Re: Truma vent wyloty powietrza
: piątek, 12 lut 2021, 15:31
autor: kooba
Obiecana fotka. To jest podkowa z tyłu przyczepy. Jak widać wylot z wenta pod łóżko też jest.
Re: Truma vent wyloty powietrza
: piątek, 12 lut 2021, 19:14
autor: naal
No i mamy kolejny ciekawy pomysł godny zastosowania

Re: Truma vent wyloty powietrza
: sobota, 13 lut 2021, 17:56
autor: cyran'o
A ja właśnie bym zostawił ten wylot w szafie przy drzwiach, właśnie po to, żeby ciepłe powietrze mieszało się z tym zimnym z kratki i tak nie j..ło lodem po nogach, jak się tam stoi. Kolejny wylot na środku pod stolikiem, przy założeniu że bakisty są ogrzewane, no i na koniec łazienka. Ta powierzchnia przy drzwiach wejściowych to jest 1/2 powierzchni użytkowej podłogi w ence, o czym nie można zapominać, i prędzej czy później wyjdzie że trzeba tam stanąć, ba, może nawet się rozebrać.

Re: Truma vent wyloty powietrza
: sobota, 13 lut 2021, 18:36
autor: RAFALSKI
Ja też uważam, że wylot przy drzwiach to dobry pomysł. Jak napisał Andrzej, od kratki wieje i właśnie dlatego warto go mieć. Kratki całkiem zasłonić nie można bo wentylacja wnętrza musi być zachowana ale dzięki wylotowi fajnie miesza się świeże powietrze z ogrzanym z wnętrza przyczepy. Zresztą wieje nie tylko od kratki, drzwi po obwodzie też nie są całkiem szczelne.
Mam zrobiony taki wylot, sprawdzony patent, również w zimę.
Re: Truma vent wyloty powietrza
: sobota, 13 lut 2021, 23:09
autor: oko
Ja się nie znam, bo mam "webasto", ale mam też wylot w szafie, przy drzwiach. Nie wyobrażam sobie żebym go nie miał. Plusy są dwa. Po pierwsze primo, tak jak Rafał napisał, drzwi nie są do końca szczelne i potrafi tam pizgać, więc ten wylot robi za kurtynę, a po drugie primo, zawsze można mokre buty podstawić i wysuszyć.
Re: Truma vent wyloty powietrza
: środa, 17 lut 2021, 11:25
autor: woyek
To w sumie te szpary do bakist można zrobić jakimiś kratkami wentylacyjnymi... A te rury od wenta nie grzeją wystarczająco bakist?
Re: Truma vent wyloty powietrza
: poniedziałek, 9 gru 2024, 17:20
autor: tantalos
Jestem po pierwszym (chyba nie ostatnim) wyjeździe zimowym jeśli można to tak nazwać bo temperatura oscylowała wokół zera stopni. Piec i vent spokojnie dały radę. Jednak pojawiło się małe niedociągnięcie w ogrzaniu przedniej części przyczepy. Mam zlikwidowany duży stolik i zrobione po całości wyrko. Całość podniesiona tak że odległość materaca od parapetu przedniego okna wynosi jakieś 10 cm. Generalnie problem jest taki że na przedniej ścianie deko piździ

mimo że szyby są podwójne i tak jak kiedyś był plastikowy panel wokół okna teraz pod pilśnią jest gruby styropian. Do brzegu: zastanawiam się nad wypuszczeniem pod oknem wylotów z trumaventa. Czy ktoś tak zrobił i może się pochwalić w jaki sposób to ogarnął? Ewentualnie jak to jest zrobione w innych przyczepach.
Re: Truma vent wyloty powietrza
: poniedziałek, 9 gru 2024, 17:57
autor: Murano
Jak dobrze pamiętam to [Cichosz] robił jakieś nawiewy pod przednim oknem.