Truma vent wyloty powietrza

czyli meble, lodówki, ogrzewanie, zlewozmywaki, kuchenki ...
Awatar użytkownika
woyek
Fanklubowicz
Fanklubowicz
Posty: 65
Rejestracja: czwartek, 17 lip 2014, 22:54
Lokalizacja: Chrzanów

Truma vent wyloty powietrza

Postautor: woyek » piątek, 12 lut 2021, 08:46

Cześć!
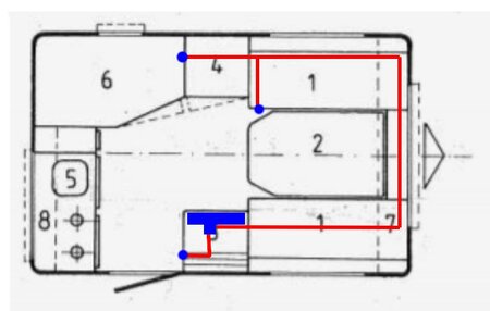
Nabyłem Trumavent i zastanawiam się nad rozmieszczeniem wylotów powietrza... Dostałem w komplecie rury i 3 sztuki wylotów, jeden trójnik, także mogę zrobić spokojnie to co narysowałem.
Gdzie jest najbardziej optymalnie mieć wyloty?
Mam układ przerobiony na N126NT jak na schemacie. Niebieskie kropki to wyloty, czerwone linie to rury. Co myślicie o takim rozłożeniu, czy lepiej coś zmodyfikować?
Zastanawiam się nad dołożeniem wylotu ewentualnie na przodzie przyczepy tylko czy jest sens, bo musiałbym dokupić trójnik i wylot.

VENT.jpg

dzin1975

Re: Truma vent wyloty powietrza

Postautor: dzin1975 » piątek, 12 lut 2021, 09:23

Jeżeli rury maja otwory na całej swojej długości, to wg. mnie ok. Jeżeli nie, to pomyślałbym o wylocie na przedniej ścianie pod łóżko. Ja tak będę robił. Fakt, mam nieocieploną przyczepę i może dlatego w chłodne dni pościel jest wilgotno-zimna. A Rudzielec nie zawsze jest skłonna do współpracy :mrgreen:

Awatar użytkownika
woyek
Fanklubowicz
Fanklubowicz
Posty: 65
Rejestracja: czwartek, 17 lip 2014, 22:54
Lokalizacja: Chrzanów

Re: Truma vent wyloty powietrza

Postautor: woyek » piątek, 12 lut 2021, 10:52

Nie są nacięte. Też myślałem żeby puścić na środku jak jest ta "linia z 2 " tylko mnie to zastanawiało czy jest sens ... Zawsze później można dać trójnik, przeciąć rurę i wylot.

naal

Re: Truma vent wyloty powietrza

Postautor: naal » piątek, 12 lut 2021, 11:35

Ja bym się nie zastanawiał tylko koniecznie zrobił wylot w łóżku. Ostatnio na wyjeździe mimo temperatury 23 stopni w budzie Przemkowi zamarzła rurka od wody. U nas w takim sezonie też materace wilgotne od spodu.

Awatar użytkownika
kooba
Administrator
Administrator
Posty: 5944
Rejestracja: środa, 13 cze 2012, 10:00
Lokalizacja: Lublin
Kontaktowanie:

Re: Truma vent wyloty powietrza

Postautor: kooba » piątek, 12 lut 2021, 11:46

1. Olej wylot przy drzwiach, na gotowanie wystarczy Ci ciepło z trumy.
2. Daj ten wylot z przodu pod łóżkiem.
3. Koniecznie zrób jak najniżej otwory wentylacyjne do bakist pod łóżkiem. Te otwory to podstawa do tego żeby materace nie były wilgotne. Nie mam fotki (może później zrobię), ale w hobby fabrycznie fronty od bakist są na zasadzie mostu żeby właśnie powietrze swobodnie docierało pod łóżko.

Samoogon

Re: Truma vent wyloty powietrza

Postautor: Samoogon » piątek, 12 lut 2021, 13:30

Przy drzwiach chyba bez sensu choć ciągnie po rajtach od kratki, reszta chyba ok z tym, że koniecznie trzeba dogrzewać bakisty. Jak pisał Marcin, mnie dwa tygodnie temu przy -8stC w bakiście zamarzł wąż mimo, że w przyczepie było ciepło, jednak przy podłodze ciągnie złem, a ten efekt może złagodzić (nie zlikwiduje przy naszych izolacjach podłogi) właśnie went.
Co do wilgoci pod materacem nie zauważyłem, ale ja mam stelaż z listew, może lepiej to oddycha.
Kooba, z chęcią zobaczę jak masz tą wentylację rozwiązaną.
Myślę też nad montażem wentylatora zza trumy, (w sensie dołu szafy do bakisty), może da radę ogrzać choć najbliższą bakiste przy szafie. Dopiero jadąc na dobrym minusie pogoda pokazuje co i jak z tym ogrzewaniem.

dzin1975

Re: Truma vent wyloty powietrza

Postautor: dzin1975 » piątek, 12 lut 2021, 15:03

Samoogon pisze:Dopiero jadąc na dobrym minusie pogoda pokazuje co i jak z tym ogrzewaniem.

No bo kto w zimie z przyczepą jeździ :mrgreen:
Truma to tylko plus 10 na dzielni, a nie żeby używać ;)

Awatar użytkownika
kooba
Administrator
Administrator
Posty: 5944
Rejestracja: środa, 13 cze 2012, 10:00
Lokalizacja: Lublin
Kontaktowanie:

Re: Truma vent wyloty powietrza

Postautor: kooba » piątek, 12 lut 2021, 15:31

Obiecana fotka. To jest podkowa z tyłu przyczepy. Jak widać wylot z wenta pod łóżko też jest.
20210212_125418.jpg

naal

Re: Truma vent wyloty powietrza

Postautor: naal » piątek, 12 lut 2021, 19:14

No i mamy kolejny ciekawy pomysł godny zastosowania ;)

cyran'o
Fanklubowicz
Fanklubowicz
Posty: 477
Rejestracja: niedziela, 2 mar 2014, 17:22
Lokalizacja: Mińsk Mazowiecki

Re: Truma vent wyloty powietrza

Postautor: cyran'o » sobota, 13 lut 2021, 17:56

A ja właśnie bym zostawił ten wylot w szafie przy drzwiach, właśnie po to, żeby ciepłe powietrze mieszało się z tym zimnym z kratki i tak nie j..ło lodem po nogach, jak się tam stoi. Kolejny wylot na środku pod stolikiem, przy założeniu że bakisty są ogrzewane, no i na koniec łazienka. Ta powierzchnia przy drzwiach wejściowych to jest 1/2 powierzchni użytkowej podłogi w ence, o czym nie można zapominać, i prędzej czy później wyjdzie że trzeba tam stanąć, ba, może nawet się rozebrać. :D

Awatar użytkownika
RAFALSKI
Fanklubowicz
Fanklubowicz
Posty: 5557
Rejestracja: czwartek, 15 lip 2010, 16:27

Re: Truma vent wyloty powietrza

Postautor: RAFALSKI » sobota, 13 lut 2021, 18:36

Ja też uważam, że wylot przy drzwiach to dobry pomysł. Jak napisał Andrzej, od kratki wieje i właśnie dlatego warto go mieć. Kratki całkiem zasłonić nie można bo wentylacja wnętrza musi być zachowana ale dzięki wylotowi fajnie miesza się świeże powietrze z ogrzanym z wnętrza przyczepy. Zresztą wieje nie tylko od kratki, drzwi po obwodzie też nie są całkiem szczelne.
Mam zrobiony taki wylot, sprawdzony patent, również w zimę.

Awatar użytkownika
oko
Przyjaciel
Przyjaciel
Posty: 2219
Rejestracja: poniedziałek, 20 cze 2016, 11:03
Lokalizacja: Gliwice

Re: Truma vent wyloty powietrza

Postautor: oko » sobota, 13 lut 2021, 23:09

Ja się nie znam, bo mam "webasto", ale mam też wylot w szafie, przy drzwiach. Nie wyobrażam sobie żebym go nie miał. Plusy są dwa. Po pierwsze primo, tak jak Rafał napisał, drzwi nie są do końca szczelne i potrafi tam pizgać, więc ten wylot robi za kurtynę, a po drugie primo, zawsze można mokre buty podstawić i wysuszyć.
OCZY :shock: Team
Nie dla nas "All inclusive". Wolimy "nonexclusive".

kilometry/nocki w n126e
12311/93

Awatar użytkownika
woyek
Fanklubowicz
Fanklubowicz
Posty: 65
Rejestracja: czwartek, 17 lip 2014, 22:54
Lokalizacja: Chrzanów

Re: Truma vent wyloty powietrza

Postautor: woyek » środa, 17 lut 2021, 11:25

To w sumie te szpary do bakist można zrobić jakimiś kratkami wentylacyjnymi... A te rury od wenta nie grzeją wystarczająco bakist?

Awatar użytkownika
tantalos
Fanklubowicz
Fanklubowicz
Posty: 2679
Rejestracja: poniedziałek, 16 mar 2015, 17:32
Lokalizacja: Rybnik

Re: Truma vent wyloty powietrza

Postautor: tantalos » poniedziałek, 9 gru 2024, 17:20

Jestem po pierwszym (chyba nie ostatnim) wyjeździe zimowym jeśli można to tak nazwać bo temperatura oscylowała wokół zera stopni. Piec i vent spokojnie dały radę. Jednak pojawiło się małe niedociągnięcie w ogrzaniu przedniej części przyczepy. Mam zlikwidowany duży stolik i zrobione po całości wyrko. Całość podniesiona tak że odległość materaca od parapetu przedniego okna wynosi jakieś 10 cm. Generalnie problem jest taki że na przedniej ścianie deko piździ :mrgreen: mimo że szyby są podwójne i tak jak kiedyś był plastikowy panel wokół okna teraz pod pilśnią jest gruby styropian. Do brzegu: zastanawiam się nad wypuszczeniem pod oknem wylotów z trumaventa. Czy ktoś tak zrobił i może się pochwalić w jaki sposób to ogarnął? Ewentualnie jak to jest zrobione w innych przyczepach.

Awatar użytkownika
Murano
Fanklubowicz
Fanklubowicz
Posty: 7156
Rejestracja: poniedziałek, 22 kwie 2013, 20:17
Lokalizacja: Zabrze

Re: Truma vent wyloty powietrza

Postautor: Murano » poniedziałek, 9 gru 2024, 17:57

Jak dobrze pamiętam to [Cichosz] robił jakieś nawiewy pod przednim oknem.


Wróć do „Wyposażenie wnętrza”

Kto jest online

Użytkownicy przeglądający to forum: Obecnie na forum nie ma żadnego zarejestrowanego użytkownika i 10 gości